Dziwnów, pow.1172 mkw., cena: 375.000 zł
Dziwnów, działka w lesie - okolice ul. Daglezji
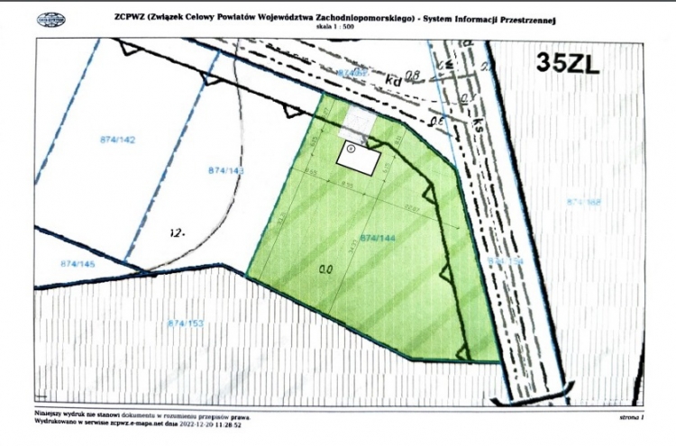
Do sprzedaży przepiękna działka budowlano-rekreacyjna położona w lesie, nad morzem.
W Miejscowym Planie Zagospodarowania Przestrzennego oznaczona symbolem 15MN- zabudowa mieszkaniowa jednorodzinna z dopuszczeniem lokalizacji funkcji usługowych wbudowanych.
Działka ma pow. 2172m2 jest zalesiona, ale będzie podzielona i do sprzedaży jest część działki tj.
pow. 1172m2, przy czym jest zgoda na wyłącznie gruntów o pow. 850m2 z produkcji leśnej.
Cena działki o pow. 1172m2 to 375tys.zł, cena całości czyli 2172m2 to 652tys zł.
Kontakt: 603764742
Dane zamieszczone w ofercie mają charakter informacyjny i nie stanowią ofert w rozumieniu Kodeksu Cywilnego.



